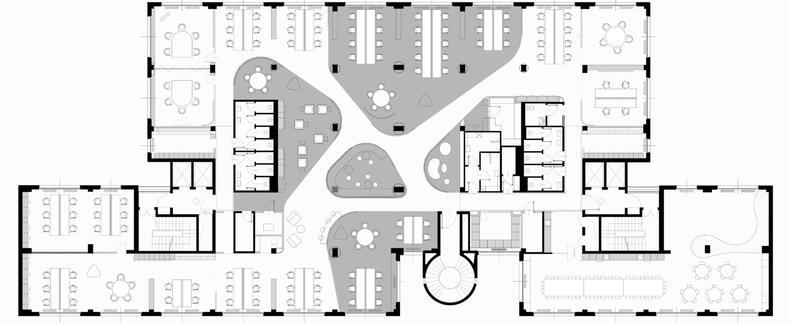
- Luogo
- Milano
- Tipologia
- Progetto di interni
- Anno
- 2020
- Mq
- 1315
- Team di progetto
- Maurizio Nigro, Alessandro Agosti, Marianna Pierucci, Sofia Badessi, Daniele Zerbi
- Cliente
- TUI Group - Musement
Progetto per il nuovo piano di uffici Musement Premium Offices









