- Luogo
- Milano
- Tipologia
- Ampliamento - Ristrutturazione - Progetto d'interni
- Anno
- 2018 - in costruzione
- Mq
- 980
- Team di progetto
- Maurizio Nigro, Alessandro Agosti, Chiara Patuzzo, Sofia Badessi, Daniele Zerbi
- Cliente
- Musement S.p.A.
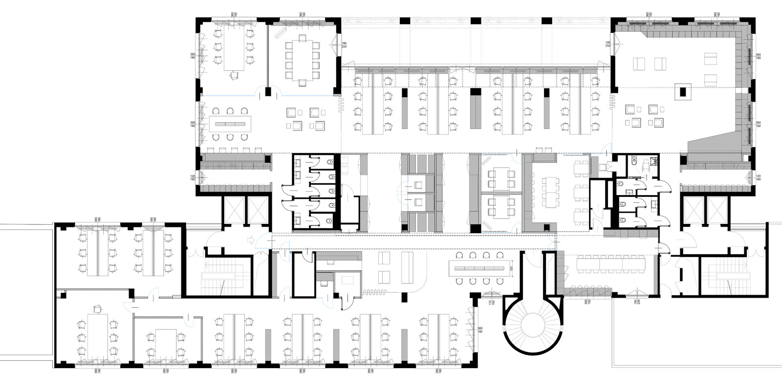
L'intervento consiste nell'ampliamento e nella riorganizzazione degli spazi interni del quinto piano di un edificio a Corvetto a Milano. Gli interni si distribuiscono attorno a un volume centrale, scavato per contenere al suo interne sale meeting, phone booth, archivi, postazioni flessibili e bagni. Negli open space attorno a questo volume si sviluppano le postazioni di lavoro fisse.








