- Luogo
- Milano
- Tipologia
- Ristrutturazione - Progetto d'interni
- Anno
- 2018
- Mq
- 1.700
- Team di progetto
- Alessandro Agosti, Maurizio Nigro, Sofia Badessi, Daniele Zerbi
- Cliente
- Abitare In S.p.A.
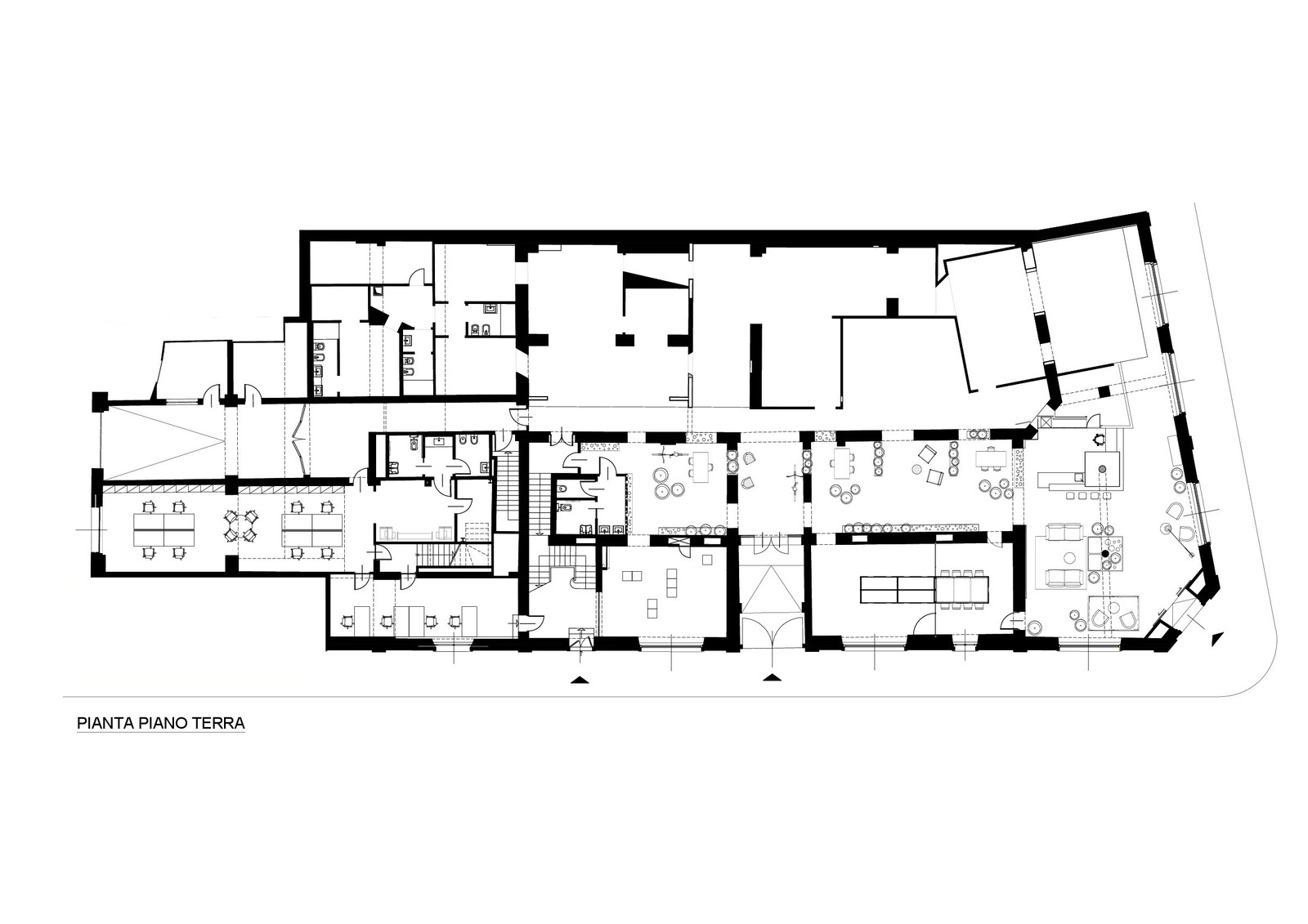
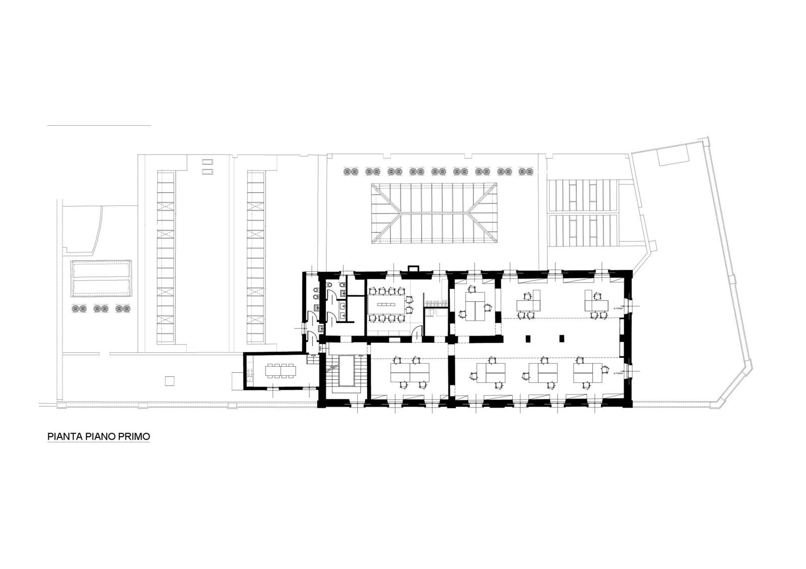
ABITARE IN HEADQUARTER
L’intervento ha per oggetto gli uffici di una società immobiliare milanese. L’edificio fa parte di un complesso di origine industriale dei primi anni del ‘900, che ancora oggi mantiene evidente i caratteri urbanistici ed architettonici iniziali. Le esigenze del committente erano quelle di spazi di lavoro open space e gli unici spazi confinati del piano sono rappresentati dalla sala riunioni e dalla sala break, quest’ultima collegata con il terrazzo esterno accessibile nei momenti di relax. Al piano secondo sono stati insediati spazi per lo svago e uffici singoli per eventuali operatori esterni.







