Luogo
Milano
Tipologia
Progetto d'interni
Anno
2017
Mq
1700
Team di progetto
Alessandro Agosti, Maurizio Nigro, Isabella Secchi, Sofia Badessi, Daniele Zerbi
Cliente
Abitare In S.p.A.

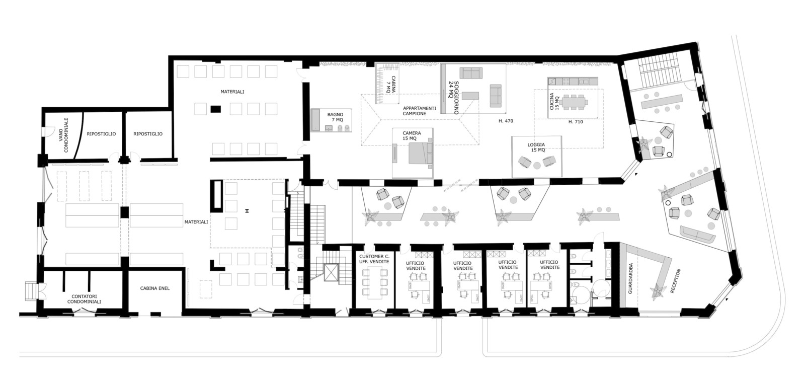
SHOWROOM VIALE UMBRIA

Concept per la conversione di un ex laboratorio, costruito agli inizi del '900; gli ampi spazi al piano terra, originariamente utilizzati come magazzino della produzione e illuminati dall’alto dagli shed originari presenti in copertura, sono stati destinati all’allestimento di appartamenti campione per un nuovo intervento residenziale. 
ISOLA LIVELLI-001.jpg
Umbria 32_Piano Terra.jpg
APP CAMPIONE-001.jpg
1.gif