- Luogo
- Pogliano Milanese
- Tipologia
- Architettura - Ristrutturazione
- Anno
- 2018 - in corso
- Mq
- 80
- Team di progetto
- Maurizio Nigro, Daniele Zerbi, Sofia Badessi
- Cliente
- Privato
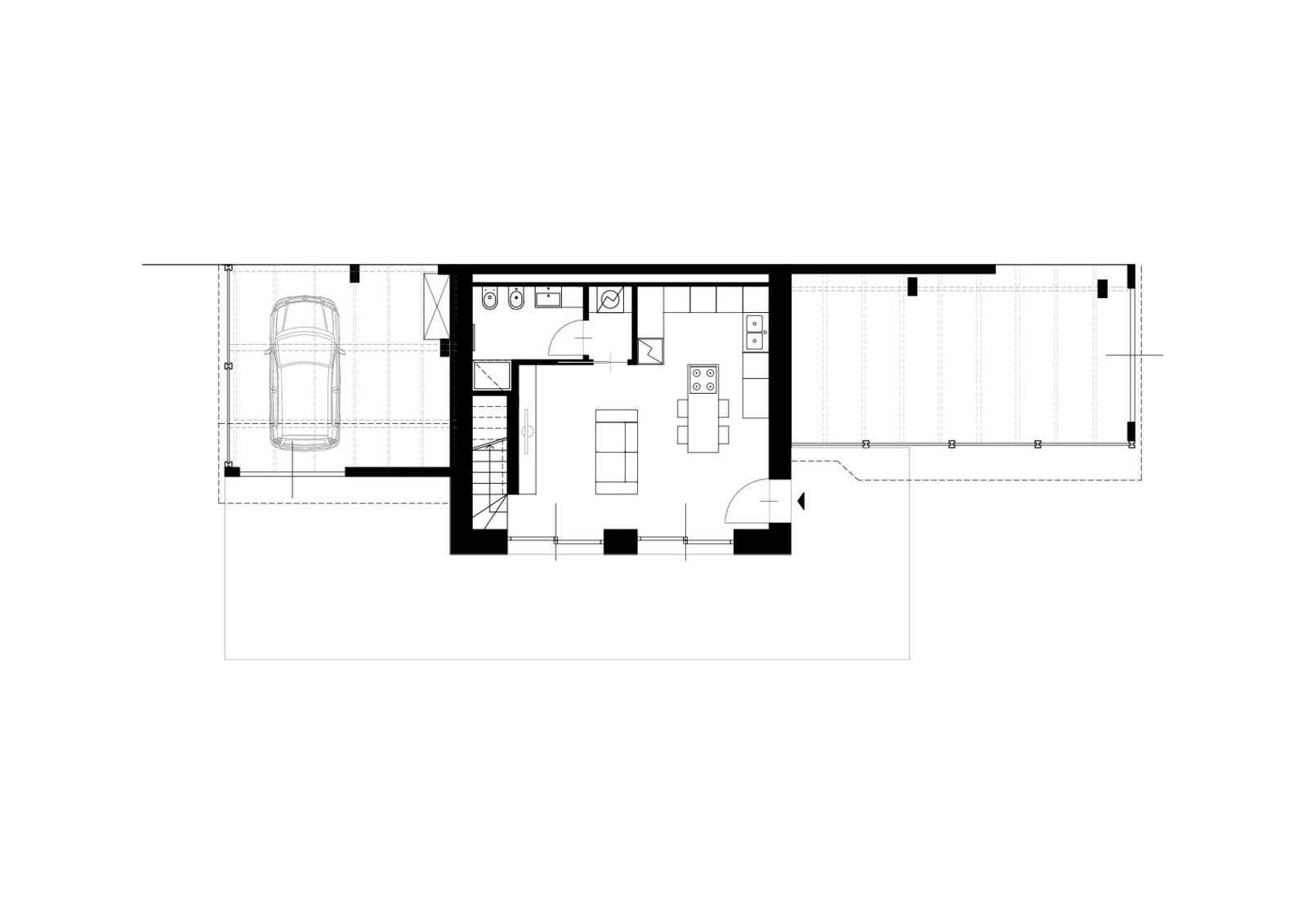
VIA VANZAGO
Intervento di demolizione parziale e di ristrutturazione di una proprietà a Pogliano Milanese.


